PROJET DESCARTES

Rénovation globale d’un appartement de 53m²

DESCRIPTION DU PROJET

Ce logement de 53m² a été loué pendant vingt ans par les ex-propriétaires et n’a pas fait l’objet de réelle rénovation. Mon client en achetant ce logement sait qu’il veut y faire des travaux d’embellissement, de rénovation mais aussi d’isolation thermique.

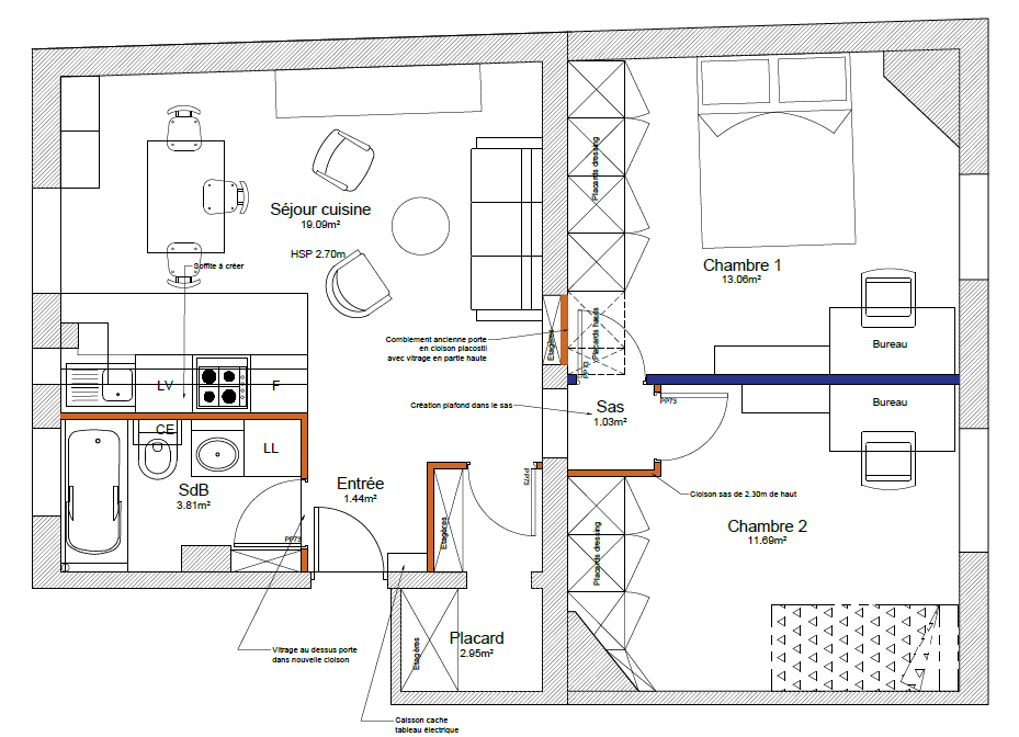
Il souhaite une plus grande cuisine ouverte sur le séjour, mais sans que la cuisine empiète sur celui-ci, il a besoin d’un cellier-buanderie, de deux chambres. Il veut des rangements partout, dans toutes les pièces. Nous sommes en région parisienne et les m² coutent chers.

Nous travaillons donc la définition du projet en affinant le cahier des charges, en modifiant la conception générale de l’appartement et en particulier de la cuisine. Je réalise des visuels 3D, qui  sont très importants pour mon client, car il se projette alors extrêmement bien. Grâce à ces visuels 3D, le projet évolue et gagne en détails. La cuisine est grandement modifiée pour être beaucoup plus conviviable et esthétique – elle est au milieu de la pièce de vie qui fait au global 19m², cette cuisine doit être fonctionnelle mais doit absolument  être esthétique – avec plein de rangements !

Grâce à la hauteur sous plafond, j’optimise les rangements avec deux rangées de placard hauts ; dans la salle de bain, tous les recoins sont exploités pour nicher des étagères ; un cellier buanderie est créé dans l’espace de l’entrée qui était démesurée pour ce logement.

Dans ce cellier buanderie, une batterie d’étagères est réalisé.

Cet appartement est doté de deux chambres dont les portes donnaient directement sur le séjour ; Cela ne permettait pas une circulation optimum et  surtout ne permettait pas de placer judicieusement un canapé. Nous avons donc créer un sas dans une des deux chambres afin de condamner la porte d’une des chambre donnant sur le séjour. La circulation vers les deux chambres est alors optimum et le nouveau séjour s’agrandit.

Chaque chambre est pourvu de rangements et placards sur mesure, toute hauteur, pour une optimisation de l’espace.

Concernant l’isolation thermique, il a été réalisé un doublage intérieur en placo avec une laine sur les façades du logement, sans changer les fenêtres qui étaient déjà en double vitrage.

 

Année du projet : 2024

Budget : environ 60 000€

Conception

Rénovation globale d'un appartement en région parisienne de 53m²
Rénovation globale d'un appartement en région parisienne de 53m²

CONTACTEZ-MOI POUR ÉCRIRE VOTRE HISTOIRE

06 78 78 27 60