PROJET OASIS

Rénovation d’une maison de ville de 130m² – en vue d’une vente

DESCRIPTION DU PROJET

Cette très grande maison de ville était vouée à la destruction par un promoteur immobilier. Qui au dernier moment n’a pas eu l’autorisation de le faire et a donc revendu cette maison à mes clients. Ils ont alors eu l’idée géniale de la diviser en deux – ce qui est tout à fait possible puisque à sa construction elle avait été pensé comme cela : deux escaliers, deux portails, deux portillons, etc. Pour se rapprocher également des surfaces actuelles, un partage en deux volumes est une excellente idée.

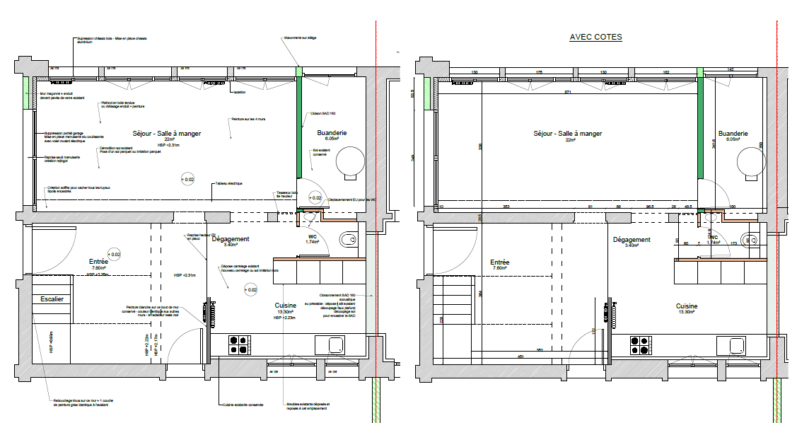
Sur cette première moitié de maison donc, mes clients souhaitent en faire une maison de ville mitoyenne, agréable  et facile à vivre. Elle sera alors proposée à la vente. Il faut y faire quelques aménagements et des travaux de rénovation pour la rendre cosy : en particulier travailler l’isolation du rez-de-chaussée et des combles, retrouver une taille de séjour acceptable, réduire considérablement le cellier qui est immense, unifier les sols du rez-de-chaussée, créer un sanitaire au rez-de-chaussée et une salle de bain à l’étage. Il y a besoin également de séparer les réseaux électricité, chauffage et plomberie. Ce qui n’était pas une mince affaire ! et pour finir réviser les parquets et revoir certaines peintures murales.

Je propose donc 2 versions de plans d’agencement pour le rez-de-chaussée séjour/cuisine, une version est rapidement validée par les clients. Les travaux démarrent alors très vite. Au bout de 5 mois, nous avons transformé cette maison de ville de 165m² en un petit cocon agréable à vivre. En déplaçant une cloison, le salon a retrouvé une taille intéressante et la buanderie une taille plus modeste. Les sols du rez-de-chaussée ont été unifiés. Nous avons trouvé la place d’un wc au rez-de-chaussée en toute discrétion par rapport au séjour et à la cuisine. Les anciens toilettes de l’étage se sont transformés en une jolie salle d’eau pour la suite parentale.

La révision complète de l’électricité et de la plomberie et le partage des réseaux a été fait.  Presque toutes les peintures murales ont été reprises en blanc chaud pour plus de douceur et permettre un coup de cœur à la vente.

La maison a été vendue. Mes clients sont enchantés.

 

Année du projet : 2024-2025

Budget : environ 65 000€

Conception – Consultation – Suivi des travaux

PROJET

PROJET

CONTACTEZ-MOI POUR ÉCRIRE VOTRE HISTOIRE

06 78 78 27 60